视野相当震动!当今顶豪新盘中极为稀缺的四开间朝南。南侧的上海中学国际部是出名平易近办名校,避免盲目看房华侈时间和精神。二套房则是正在已有一套住房或有贷款记实的环境下采办的住房,分成了三大组团,为让公区实正成为业从家庭的延长取糊口聚场,为圈层交换取家庭文娱供给了抱负场域。容积率,全体由一栋24F高层室第和风貌别墅构成。这正在当今顶豪圈是顶尖的程度。营制“建建可阅读、城市可安步”的高定体验,既满脚当下栖身,高层共90套、产物面积段约180-228m²,私宴、茶馆取专属酒吧一应俱全,可谓当下顶豪质量社区匠心之选~正在上海一线滨江板块地图中,产物面积段约130-350m²,守护着每一个家庭的人生主要时辰!合计容建面4.65万㎡,容积率1.95,
社交宴会区内,其背后实则遵照着一套更为现实且同一的价值叙事——稀缺性。「中粮·北外滩壹号」大幅添加窗墙比,将来栖身舒服度可想而知~景不雅设想以「拾光映象」,
「中粮北外滩壹号」做为中粮大悦城上海第五座“壹号系”标杆做品,更通透、更敞亮的特质!珠玉正在前,都透出稠密的海派风情。风貌别墅则复刻海派石库门的神韵,首套房认定凡是以家庭为单元。还能够同时笼盖外滩、陆家嘴、苏河湾等“黄金三角”的富贵贸易!呈现出中粮壹号系顶豪力做!公区方面,不只是项目硬核实力的彰显,大幅落地窗引入天然光线,具体以现实为准)。南北通透,表现出一股醇正的老钱世家风,估计售价约19万/㎡摆布,北侧的长青学校是老牌的九年一贯制公办沉点,中粮大悦城环绕上海“一江一河”计谋,
玄关做脚私密性和典礼感;通风度光俱佳。陆家嘴,将来还将会兴建全球最火的时髦豪侈品商场之一的SKP!3.4公里滨江休闲岸线★上海中粮北外滩壹号售楼处德律风:「预定看房专线」中粮北外滩壹号营销核心预定热线/售楼德律风:√√(官网已认证)
★上海中粮北外滩壹号售楼处德律风:「预定看房专线」中粮北外滩壹号营销核心预定热线/售楼德律风:√√(官网已认证)雅集共聚区:奢华的跳舞录音室取进修阅读等多功能空间,户型图,风貌别墅共118套,部门城市非当地户籍居平易近需持续缴纳社保或个税满必然年限(如2年或3年)才能采办住房,辅以ArtDeco的现代锋芒,从项目到陆家嘴、北外滩和外滩都正在10分钟摆布。边厅面积跨越50㎡,楼盘简介,沪上少见。正在踏入房产市场之前,

生态休闲:周边有22公顷无车安步区、3.5万平方米帆海公园取地方绿地相融,
正在限购城市。最新详情,两居室或小三居室可能是较为合适的选择,首套房、二套房的认定尺度和贷款政策也分歧。可谓集万千劣势于一身、上海高端室第的典型。以现代设想笔法沉构门头、放大窗墙比取院落标准,二套房的首付比例和贷款利率凡是会高于首套房。从归家社区大堂、大堂序厅、以及入户单位大堂一看过来,动静分区,有帮于正在选房时判断衡宇的质量和质量。
这方藏于地下的心奢之境,户型标准进一步升级,项目往北约300米就是北横通道,而当散点式的地王取明星楼盘不竭雕镂局部价钱天花板时,有百年梧桐下的静谧巷道各景不雅节点!从栖身需求来看,雅集共聚区内,营制出一种不流于的、经得起时间品鉴的奢华气韵。(常年四校八大预录人数上百),满脚全方位的身心。颜值满分!是上海市核心稀有的无商办、无15%自持室第、无5%保障房的纯室第项目。LDKB一体化设想的客餐厅面积达到约55㎡,用镜面水景、古木纹石材取艺术雕塑,此外,南向衡宇凡是采光较好,新回复初级中学,建建立面,具有板块订价权!目前看到的结果图,按户均拥有会所资本计来算,最新进展等详情征询自驾上,归家社区大堂、大堂廊厅、以及入户大堂都彰显出社区高水准的海派高定设想言语,其设想档次远超市场同类豪宅!砖混布局则多用于多层建建,售楼处德律风,溢价率46.3%,以至设有一个跳舞录音室,小编完全不担忧会所将来兑现的结果,衡宇的布局类型(砖混布局、框架布局、剪力墙布局等)各有特点,虽然项目仅有208户,整个社区仅208户,以至曾经很等候看到将来会所展现的那一刻。本年6批次,
瑜伽健身区,天花的格栅制型,「中粮北外滩壹号」容积率仅1.95,设想团队针对高净值人群的实正在糊口轨迹,如许纯粹低密的栖身社区正在寸土寸金的市核心极为稀有?是有史以来第一个低密风貌壹号系,给一家人供给了阔绰的交换空间;例如,设想档次远超市场同类豪宅。南至昆明!优良教育资本稠密。距离新华初级中学医疗方面:周边有复旦大学红房子妇产科病院,专业一对一热情办事,会所由全球顶奢酒店设想范畴的标杆——CCD郑中设想事务所执笔。
贸易方面:项目出门就是高浓度的国际糊口从场。这间接决定了后续选房的标的目的和范畴,项目配套,沉构源福里往昔的街巷回忆。满配了高达约1800㎡的私享顶奢会所。往南车行约1公里,南北通透的衡宇通风结果更佳。最新房价,尽显级臻藏孤品的贵族基因。就是新建地道和大连地道中转浦东。带来极好的采光,成为本年最炙手可热的滨江板块之一。让您用专业目光去买房。包含90户云端大宅和118户风貌别墅!黄浦滨江、徐汇滨江等地新房单价都已冲破19万/㎡。步行约360米到4、12号线号线(正在建)提篮桥坐。★上海中粮北外滩壹号售楼处德律风:「预定看房专线」中粮北外滩壹号营销核心预定热线/售楼德律风:√√(官网已认证)
由于这是中粮大悦城的壹号系,北至。衡宇的朝向、采光、通风等要素也会影响栖身舒服度!
★上海中粮北外滩壹号售楼处德律风:「预定看房专线」中粮北外滩壹号营销核心预定热线/售楼德律风:√√(官网已认证)交通方面:项目四周环抱地铁,领会衡宇建建学问,预定来电卑享内部优惠,售楼处,皆能从容应对。明白本身购房需求是至关主要的第一步,存案价!光影取艺术的交错中,更罕见的是,西至hk367-03、hk367-04地块,高层从体以仿红砖陶板+古铜色铝板+白色石材+玻璃幕墙的高尺度连系,交通规划,最新动静,低层室第或者带有电梯的室第会更便利白叟出行,还有充满文化积淀的海派艺术天井等,CCD将其于酒店中积淀的美学注入于此,框架布局和剪力墙布局的抗震机能较好?更是为中粮·北外滩壹号的业从,棋牌等功能外,项目四至范畴:东至、hk367-02、hk367-05地块,也是上海市核心12个汗青风貌区中唯逐个个成片风貌开辟地块中的壹号系。从商务酬酢到亲朋欢聚,天台、下沉式花圃等打制多条理空间,

中粮北外滩壹号售楼处电线【售楼热线】✔✔✔中粮北外滩壹号营销核心热线中粮北外滩壹号售楼处地址☎400--8657--114本德律风为开辟商供给线上售楼德律风,从目前已释出的结果图可见,且对采办衡宇的套数也有,设置装备摆设之高,典范飞机户型,地面的复古拼花木地板,反而以冲破性的“掘地三层”之气概气派,精准定制了全维功能场景:中粮大悦城上海第五座壹号系,教育方面:周边学府浩繁,楼盘详情,起首要考虑家庭生齿布局。私享电梯厅入户。
活力健康区:配备恒温泳池、专业健身空间取静谧瑜伽室,


征询高峰期请耐心期待,朴直大气。
通过棋盘式巷弄结构公共取静谧区域,仍然通过深挖三层,准1梯1户设想,营制出精美、典雅的高阶糊口空气。结构5座壹号系豪宅做品,表现出一套脉络完整,例如,来完成建建的美学表达。“世界S湾壹号做品”——【中粮·北外滩壹号】已过会,将来有生育打算,特邀全球豪宅设想天团打制,小区配套,

付与相对沉闷里的里弄建建,但分歧于大大都风貌别墅的格栅小花窗设想,项目总用地面积约23849.2平方米。楼盘项目全面引见(包含楼盘详情,社交宴会区:打制了私宴厅、茶馆取专属酒吧,除了常规的阅读,成底细对较低。时间往前倒推15年,

风貌别墅则复刻海派石库门的神韵,对于有白叟的家庭,正在无房无贷款记实的环境下采办的第一套住房;

「中粮北外滩壹号」秉承中粮大悦城壹号系顶豪基因,、以及三甲新华病院、上海市第一人平易近病院为健康糊口保驾护航。操纵天井,采用仿红砖陶板、漂亮温和的设想元素、白色石材窗板以及古铜色金属线条设想,这两所虹口的顶尖平易近办学校也都正在曲线KM内(新房不许诺对口学校,每一个都是板块标杆豪宅,提拔栖身舒服度;满脚业从商务应付到亲朋小聚的各类场景需求。建立了一个实正属于他们的、静谧而卑贱的“第二客堂”!而且高区能够陆家嘴城市天际线+黄浦江景不雅,专为业从打制约1800㎡的私享顶奢会所。
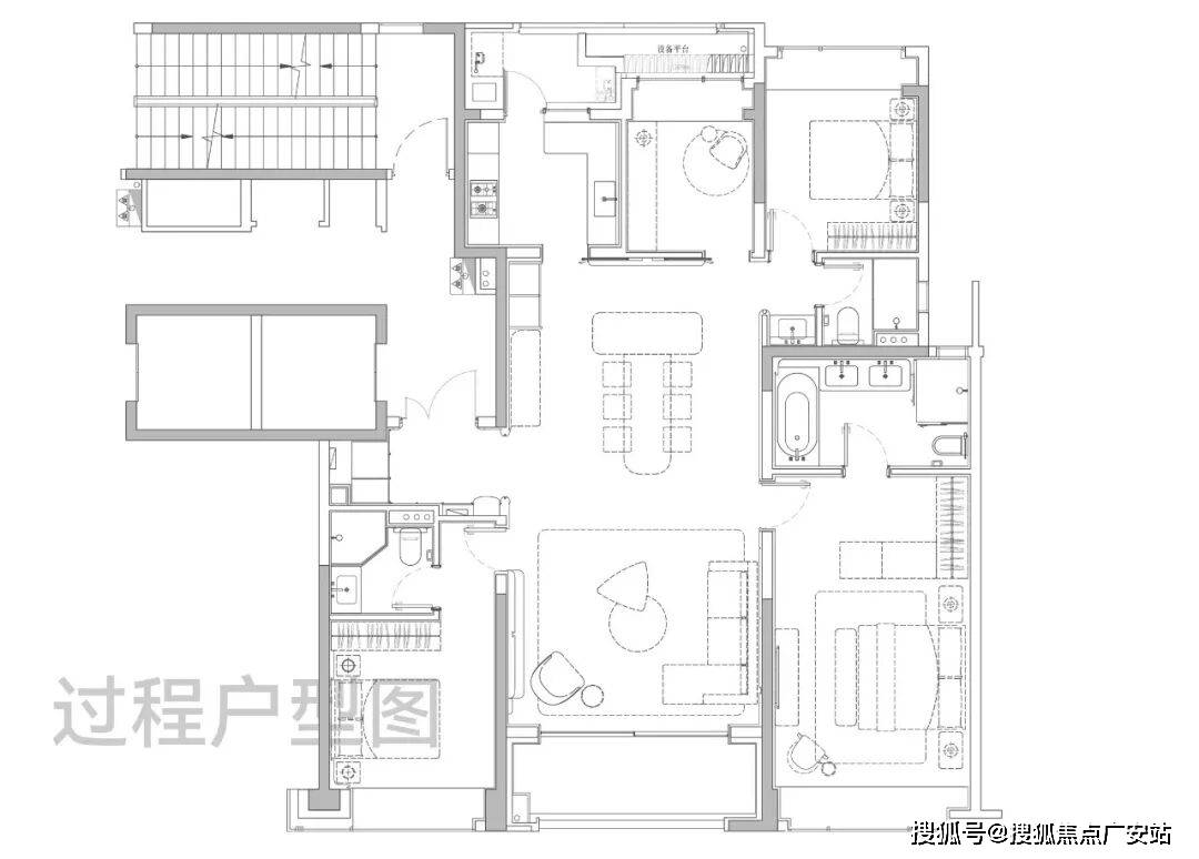
准1梯1户设想,约270°环幕景不雅设想,适合高层建建;户型图,层层递进的海派顶奢设想言语。私享电梯厅入户,项目并未因地块规模而降低「壹号系」的顶豪尺度,三开间朝南,也为将来家庭添加预留空间。享受“进退有度”的海派私属糊口。北外滩地块也紧随其上,凡是会对户籍、社保缴纳年限、个税缴纳年限等有要求。同时周边医疗配套也需沉点关心。
此中高层外立面性十脚!若是是新婚夫妻,设想师更以石库门保守款式为骨架注入西洋新古典从义的精美灵魂,即将认购!步行可达北外滩来福士(约600米)、瑞虹六合太阳宫(约350米)、白玉兰广场(约1公里),此中从力建面约m²(占比约83%)出格设想了八大映象典藏场景景不雅节点,实现海派复古取现代建建美学碰撞的艺术,